17. října 2013 –– architektura –– Zdeněk Liška
Na okraji vesnice Balsthal nedaleko švýcarské Basileje stojí dům jednoduchých geometrických tvarů. Jedná se o první realizaci vlastního rodinného domu mladého švýcarského architekta Pascala Flammera. Dvoupodlažní budova ze skla a dřeva s tradiční sedlovou střechou nabízí panoramatický výhled do okolí a svým pojetím připomíná japonské domy.
Již od prvního pohledu si může divák myslet, že dům stojí někde v Japonsku a nemusí být tak daleko od pravdy. Na osobitý styl architekta měl pravděpodobně vliv Japonský architekt Kazuo Shinohara, se kterým tehdy Flammer pracoval v kanceláři Valeria Olgiatiho.
Dům se nachází na okraji svažitých luk hornatého kantonu Solothurn. Již od prvního pohledu upoutá diváka jeho částečně zapuštěná forma do terénu a panoramatické prosklení přízemní fasády. Svým tvarem reaguje na tradiční venkovskou zástavbu použitím sedlové střechy, která kontextově navazuje na zdejší zemědělské farmy.
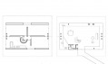
Stavba má dvě nadzemní a jedno podzemní podlaží. Jednotlivé výškové úrovně spojuje subtilní točité ocelové schodiště. V prvním podlaží je vytvořen jeden velký pokoj. Zapuštění podlahy do terénu v tomto podlaží se odvíjí od výšky skříněk s úložnými prostory a kuchyní. Ty jsou umístěny po celém obvodu místnosti a mohou zároveň posloužit jako lavice. Architekt zde chtěl docílit ničím nerušený panoramatický výhled do krajiny s pozice sedícího člověka. V suterénu je technická místnost. Druhé podlaží je rozděleno příčkami na čtyři místnosti – tři ložnice a koupelnu. Stropy zde tvoří samotné podkroví, což dělá místnosti s výjimečné vysokou světlou výškou.
Dům je celý postaven ze smrkového dřeva, které je typický pro zdejší oblast. Podlahy, příčky a stropy byly ponechány v přírodní barvě smrku, což dělá prostory světlými. Fasáda je obložena opět dřevěnými palubkami, které jsou nalakovány černým olejem. Krytinu střechy tvoří klasická pálená taška.
Čtěte další články na téma bydlení a Švýcarsko
Foto: Ioana Marinescu
Zdroj: Pascal Flammer















































